Services

Complete solutions for steel structure development

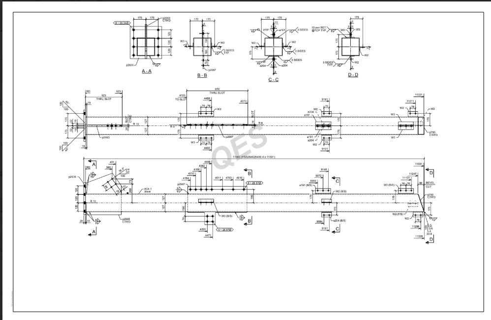
STRUCTURAL STEEL DETAILING

We create precise, detailed drawings that guide the fabrication and erection of steel structures. Our work bridges the gap between design and construction – ensuring accuracy, efficiency, and safety at every step.

No project is too small or too large – we seamlessly adapt to every scale, from compact structures to towering industrial facilities.

Miscellaneous steel detailing for every sector

Our firm has extensive expertise in delivering structural steel design and detailing solutions for diverse sectors such as logistics and distribution centers, industrial and manufacturing plants, educational campuses, and hospital infrastructure. We are proficient in managing complex geometries, critical load paths, and tight project schedules – ensuring accuracy, constructability, and compliance with international design standards

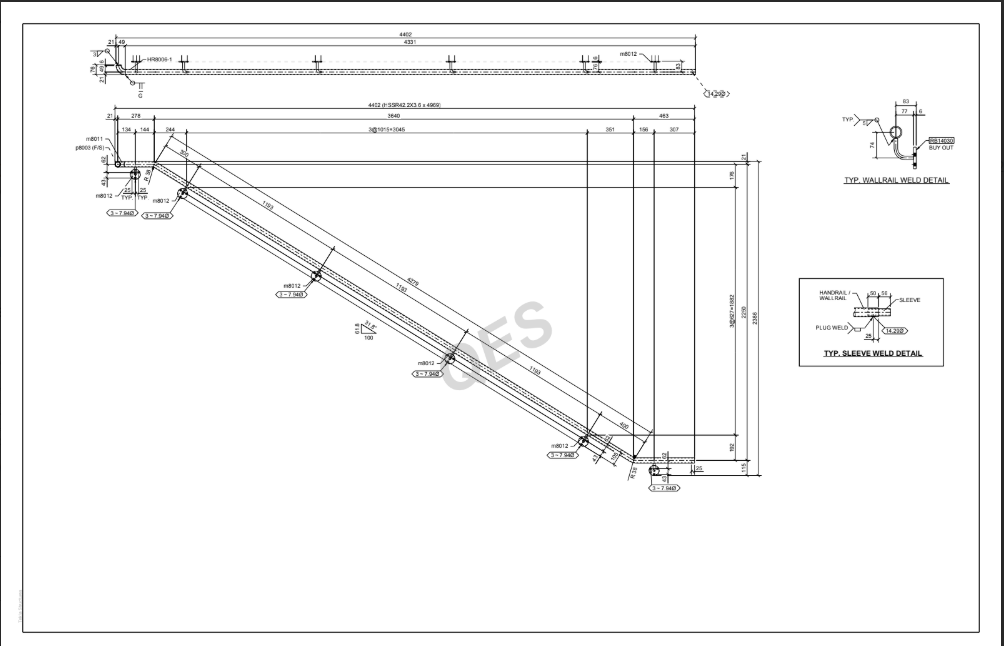
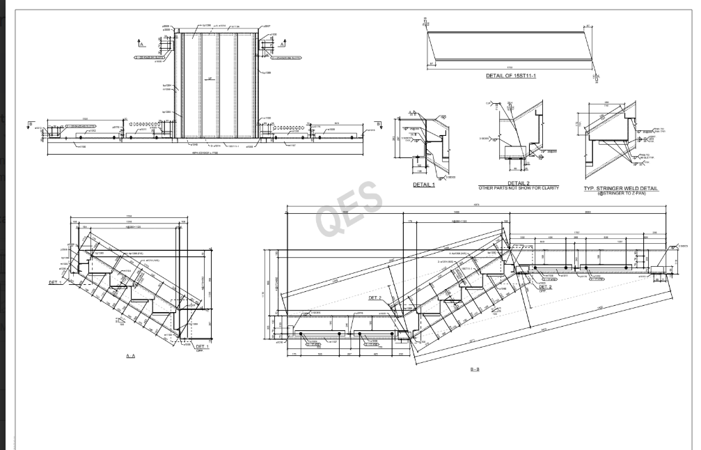
Our expertise covers the complete design and detailing of access structures such as staircases, ladders, mezzanines, and handrails, engineered for strength, durability, and compliance with OSHA and AISC and CISC standards. We integrate advanced modeling tools and coordination processes to deliver accurate fabrication-level details, minimizing rework and ensuring smooth execution in steel plants, refineries, and large infrastructure projects.

Examples of the structures we design and detail include:

 

  • Industrial Structures
  • Commercial Buildings
  • Institutional Buildings
  • Transmission Towers
  • Schools
  • Modular Structures
  • Hospitals

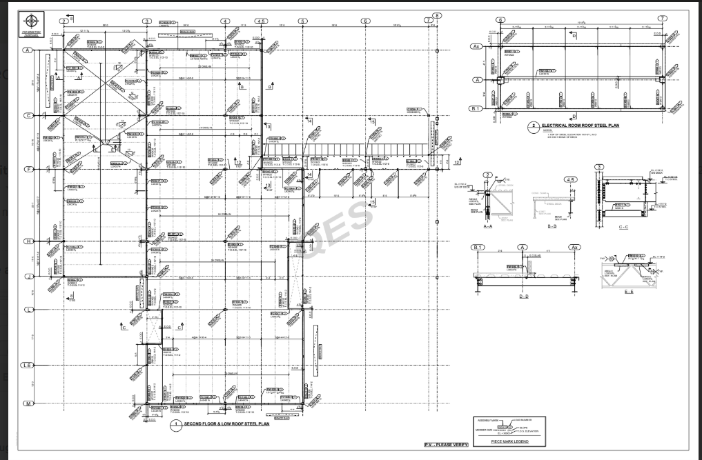
3D Structural Modeling

Construct with confidence using precise, constructible, and data-centric 3D models.

Erection Drawings

Streamline your construction process with accurate and comprehensive erection drawings.

Fabrication Drawings

Streamline your construction process with accurate and comprehensive erection drawings.

CNC FILES

Cut production time and errors with CNC data. We provide files in various formats such as DXF and DSTV.

Bill Of Materials

Enhance project planning by integrating the data from the BIM model with your MIS software.

Custom Reports

Maximize efficiency and control to support procurement, estimation, and project management.

Connection Design & Delegated Design Services

Our team understands that connections are critical, not just for strength but also for constructability, erection safety, and code compliance.

We create OSHA, AISC, AWS, ASTM, CISC, and CSA-compliant connection drawings, helping engineers, fabricators, and erectors achieve smoother workflows with fewer site revisions

Connection Analysis & Requirement Review

We carefully review structural drawings, load specifications, and project requirements to determine the optimal bolted or welded connection strategy

Tailored Connection Design

Each steel connection is engineered to meet load-bearing demands, fabrication feasibility, erection requirements, and relevant code standards.

Detailed Connection Documentation 

Our drawings provide comprehensive details-bolt types and sizes, weld specifications, gusset plates, and edge distances-ensuring accurate fabrication and smooth field assembly.

Engineer & Fabricator Coordination

We collaborate closely with engineers and fabricators to identify potential conflicts early, streamline approvals, and reduce site delays.

Submission & Approval

Finalized drawings include complete bolt/weld schedules and supporting documentation, ready for client review and approval.

Field Support & Issue Resolution

We remain available during construction to address RFIs, provide clarifications, and implement revisions efficiently to support on-site erection.

Structural Steel Estimation Services

Structural Steel Estimation Services encompass detailed quantification of steel sections, connection materials, and associated costs for construction projects. These estimates are critical for accurate budgeting, efficient procurement, and scheduling, helping contractors and fabricators execute projects with precision and minimal resource wastage.

Pre Engineered Steel Building Design

Pre-Engineered Steel Building (PEB) Design involves creating structures using prefabricated steel components that are manufactured off-site and assembled on-site. These buildings offer optimized structural performance, reduced construction time, cost efficiency, and design flexibility across industrial, commercial, and institutional applications.

Steel Structure Detailing

Preparation of Detailed technical drawings and optimised files for manufacturing.

Bluebeam Revu

Our Team delivers efficient PDF markup, measurement, quantity take-off and collaborative review solutions using Bluebean Revu, customised to project and client requirements.

Tekla Specialists

Our Experienced Tekla Structures Team offers customised solutions, including reports, macros, and connections developed through programming tailored to client.

2D & 3D Modeling & Connection Design

Advanced 2D & 3D modelling for realistic visualization and strategic planning.

SDS2 Specialists

Our skilled SDS2 Team delivers customised detailing solutions, including advanced connections, automated workflows, and tailored reports developed through SDS2 programming to meet each client’s specific needs.

We follow the below standards and codes: